Deze ruime stacaravans zijn gebouwd voor families met rolstoelgebruikers of mensen die een handicap hebben waardoor de toegankelijkheid reguliere stacaravans moeilijk is. Ons doel is om ervoor te zorgen dat de toegankelijkheid van onze stacaravans niet voor problemen zorgt.
Stacaravans






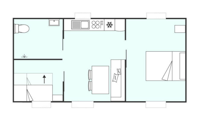
Specifications
De helling zorgt voor perfecte toegang tot de stacaravan terwijl het terras voor een perfecte plek zorgt om in de open lucht te dineren tijdens een mooie zomeravond.
Het interieur is ontworpen om je makkelijker te bewegen met een rolstoel, met interne schuifdeuren en een grotere ruimte voor de huiskamer en keuken. De badkamers hebben een aangepaste inloopdouche en faciliteiten.
De specficaties en plattegrond van de beide stacaravans veschillen. Als je geïntereseerd bent kun je hieronder meer informatie vinden of ons bellen op +44 1825 748 318. De foto’s hierboven zijn van beide stacaravans. De reservering voor de Beechwood B moet worden goedgekeurd door onze gastenmanager zodat we zeker weten dat we begrijpen wat je nodig hebt.
Beechwood A – met ruimte voor vier personen
Zoals je kunt zien op de plattegrond heeft de Beechwood A een ruime tweepersoons slaapkamer en een kleinere slaapkamer met een eenpersoonsbed en een onderschuifbed voor een kind.
- Toegang met een helling, verhoogd terras en bredere door
- Interne schuifdeuren
- Het aanrecht en de gootsteen zijn lager geplaatst
- De badkamer heeft een verhoogd toiet, mobiele zitting in de douche, extra leuningen en een roll-in douche.
Beechwood B – voor vier personen*
Beechwood B heeft een aantal eigenschappen die het geschikt maken voor families of echtparen waarbij een persoon extra assistentie, zorg en apparatuur nodig heeft.
Het heeft een grote tweepersoonskamer (die desgewenst kan worden aangepast naar een eenpersoonskamer of een tweepersoonskamer met enkele bedden. Daarnaast is er een kleinere tweepersoonskamer. Een van de bedden is een onderschuifbed dat zo kan worden opgeborgen als het niet wordt gebruikt. Met een slaapbank in de huiskamer biedt deze stacaravan ruimte aan zes personen.
- Toegang met een helling, verhoogd terras en bredere deur.
- Interne schuifdeuren
- Het aanrecht en de gootsteen zijn niet verlaagd
- De badkamer, die een beetje groter is dan die van de Beechwood A, heeft een verhoogd toilet, een zitting in de douche, een optionele mobiele zitting, extra leuningen en een roll-in douche.
- Een 180cm douche en een omkleedwagen zijn voorzien. Deze past in de badkamer met de deur dicht.
- Wij kunnen een mobiele takel en/of een mobiele douchestoel voor gebruik in deze unit** ter beschikking stellen.
- Een full-spec ziekenhuisbed kan worden voorzien**; wij huren dit voor u en geven de kosten door.
*Met twee personen op de slaapbank in de huiskamer.
**Deze zaken moeten minimaal drie weken op voorhand worden gereserveerd.

